Биокамин с объемной рамкой встроенный в портал
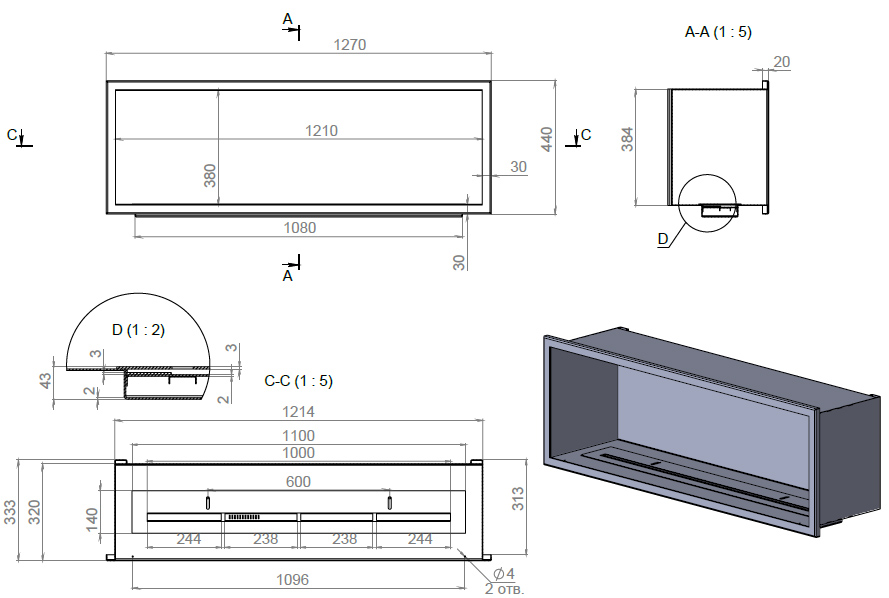
В соответствии с техническим заданием спроектирован, изготовлен и установлен встраиваемый биокамин. По проекту портал изготовлен из термостойкого гипсокартона, отделан изразцами, поэтому при проектировании корпуса биокамина были учтены размеры bphfpwjd.
Документы
Товары
Все
4
Биокамины
4
Встраиваемые
4
|
Оформите заявку на сайте, мы свяжемся с вами в ближайшее время и ответим на все интересующие вопросы.
|
Заказать проект
|








